Gewerbeobjekt Wiesbaden Schierstein - 6 Zimmer, 175 m², 1.555€ | Angebot:26377163

6 Zimmer-Büro in Wiesbaden-Schierstein

Informationen zur Immobilie:
Zimmeranzahl
6
Ort
65201 Wiesbaden
Objektart
Gewerbeobjekt
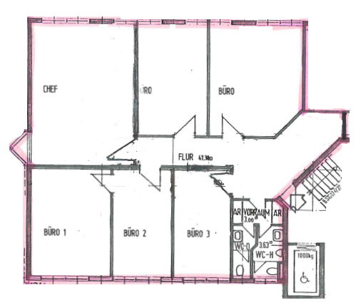
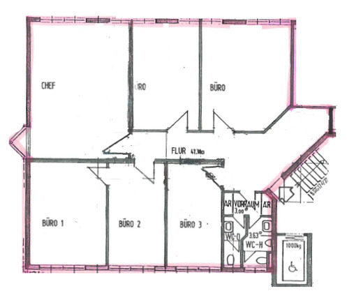
Größe
ca. 175,00 m²
Energieausweis
Verbrauchsausweis
Energieverbrauchkennwert
160 kWh/(m²·a) kWh/(m²·a)
EPass gültig bis
12.03.2030
1.555 €
(zzgl. Nebenkosten)
Kaltmiete
Beschreibung:
Mehr zum Angebot 6 Zimmer-Büro in Wiesbaden-Schierstein:

Entdecken Sie ein beeindruckendes Objekt mit etwa 175 m² Fläche, das 2019 modernisiert wurde, um modernen Komfort und Funktionalität zu bieten. Hier profitieren Sie von einer CAT 6-Verkabelung für optimale... mehr erfahren
weitere Gewerbeobjekte
social facebook social youtube social instagram social tiktok

Copyright © 2000 - 2026 | 1A Infosysteme GmbH | Content by: 1A-Anzeigenmarkt.de 30.04.2026